Product Description
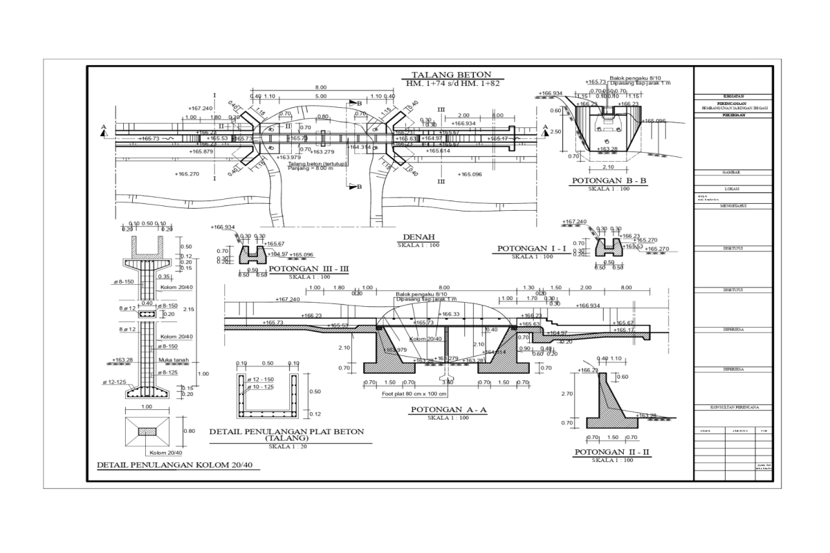
Contoh gambar desain bangunan talang beton dengan bentang 8 meter ini saya buat pada Autocad 2010, gambar lengkap berupa denah dan berikut detail potongannya.
Contoh gambar ini saya peruntukkan buat teman-teman yang saat ini membutuhkan gambar referensi untuk membuat gambar desain bangunan talang. Baik untuk referensi dalam pembuatan tugas dari mata kuliah irigasi ataupun untuk teman-teman yang saat ini sedang mengerjakan proyek pengairan khususnya dalam membuat Gambar desain bangunan air yaitu gambar talang beton.
Gambar ini langsung dalam bentuk file dwg, sehingga untuk teman-teman yang sudah mempunyai software Autocad 2008, 2010, dst. Bisa langsung mengedit gambarnya sesuai kebutuhan di lapangan (sket hasil inventory lapangan). Dan gambar ini sudah berskala, jadi nantinya bisa langsung di print sesuai dari kebutuhan ukuran kertasnya.
Semoga bermanfaat.
Product Advantages
-
Contoh gambar desain bangunan talang beton ini dapat dijadikan sebagai acuan ataupun referensi di dalam melaksanakan pekerjaan perencanaan irigasi teknis, sehingga diharapkan akan lebih mempermudah dan mempercepat dalam melaksanakan pekerjaan perencanaan.
Who Should Buy This Product ?
-
mahasiswa, dosen, pelajar, dan karyawan perusahaan Konsultan Perencana dan Kontraktor
Requirements
-
Mampu mengoperasikan komputer atau laptop khususnya dalam menjalankan program Autocad 2008, 2010, dst.
No reviews yet
Write Review
Please purchase this product to be able to write review